产品名称:MH箱式单梁门式起重机
产品分类:门式起重机→MH箱式单梁门式起重机
产品描述:
本产品为一般用途起重机,多用于露天场所及仓库的装卸或抓取物料。有地操和空操两种方式,上述价格为地面操控,不含电动葫芦,横担或马鞍形式另算。大车导电形式有大车导电架和电缆卷筒两种,由用户任选一种,电缆卷筒规格及安装位置视具体情况选择。
本产品严格按国家3包执行,产品质量由中国人民保险公司(PICC)承保,请放心使用。
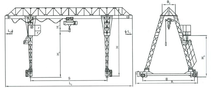
产品参数概述
MH单梁门式起重机起重量是5t;有12m,16m,20m,24m,30m等五种标准跨度;起升高度有6.9m,9m两种。
产品参数:
|
Lifting weight 起重量
|
跨度 Span
|
起升高度 Lift Height
|
悬臂长度 hanging arm length
|
工作制度 working system
|
电动葫芦 Electric Hoist
|
运行机构 Travel Mechanism
|
荐用轨道型号 Special track type
|
主要尺寸 (mm) Main Size
|
备注 Note
|
|||||||||||||
|
S
|
H2
|
型号 Type
|
起升速度 Lift speed
|
运行速度 Travel speed
|
运行速度 Travel speed
|
减速机 Decelerator
|
电动机 Motor
|
总长度 Total length
|
吊钩极限位置 Hook Limit Position
|
操纵室至轨道面距离 Distance Between Operation Room and Track
|
轮距Wheel Distance
|
横梁 Crossbeam
|
支腿上部中心 Center Distance for suport upper pat
|
总高 Total Height
|
||||||||
|
型号 type
|
功率 power
|
|||||||||||||||||||||
|
吨 T
|
米 Meter
|
米/分 Meter/s
|
千瓦 kw
|
L2
|
H1
|
i1
|
i2
|
H3
|
B
|
B1
|
B2
|
H
|
||||||||||
|
3
|
10
14 18 22 26 30 |
6
|
3
3 5 6 6 7 |
A5
|
CD1;MD1
|
8 ; 8/0.8 |
20(30)
|
30
|
ZSC400-Ⅲ3/4/37.33
|
YZR132M2-6
|
4×2
|
P43
|
16
20 28 34 38 44 |
1160
|
600
|
650
|
4500
|
5644
|
6240
|
1400
|
9120
|
不同吨位与跨度及不同起升高度的总重和轮压见随机图纸
|
|
5
|
10
14 18 22 26 30 |
3
3 5 6 6 7 |
16
20 28 34 38 44 |
|||||||||||||||||||
|
10
|
10 14 18 22 26 30 |
6 9 10 |
3
3 5 6 6 7 |
7 ; 7/0.7 |
|
|
ZSC600-Ⅳ3/4/46.7
|
YZR160M1-6
|
6.3×2
|
16
20 28 34 38 44 |
1600
|
700
|
750
|
5190
6000 7200 |
5830
6670 8500 |
1450
|
10550
13550 16550 |
|||||
产品结构:

温馨提示:
该页面参数为通用参数,仅供参考。实际工作参数,我公司将根据您的工作场所而提供最佳方案。购买和安装前后,我工厂工程师将全程陪同协调。



备案号: